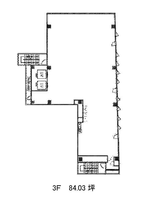
3階は現在募集がありません
プレリー日本橋ビル 3階
物件概要
プレリー日本橋ビルのテナント募集中区画
現在、空室がございません。
アクセス
プレリー日本橋ビルの物件情報
プレリー日本橋ビル(中央区日本橋)は日本橋駅(C6番出口)から徒歩2分の賃貸オフィスです。
複数路線の利用が可能なアクセス良好な立地といえるでしょう。地上11階建て、竣工2021年のガラス張りの物件のため、とても綺麗で上層階からの眺望はとても良好です。OAフロアを備えており、基準階は約83坪、室内は無柱空間の為レイアウトも組みやすいでしょう。また駐車場を備えており、車を利用したアクセスも可能です。また周辺にはコンビニや飲食店が複数あるため利便性が高いです。
プレリー日本橋ビルは日本橋駅(C6番出口)の他に茅場町駅(11番出口)徒歩5分、三越前駅(B6番出口)徒歩7分で利用も可能です。

