3階は現在募集がありません
日本橋茅場町阪神ビル 3階
物件概要
日本橋茅場町阪神ビルのテナント募集中区画
現在、空室がございません。
アクセス
日本橋茅場町阪神ビルの物件情報
日本橋茅場町阪神ビル(中央区日本橋茅場町)は茅場町駅(4A番出口)から徒歩1分の賃貸オフィスです。ひと目で印象に残るのは、黒と白のパネルが映えるデザイン性の高い外観。築年数を感じさせないシャープな雰囲気で、通り沿いでも目を引きます。
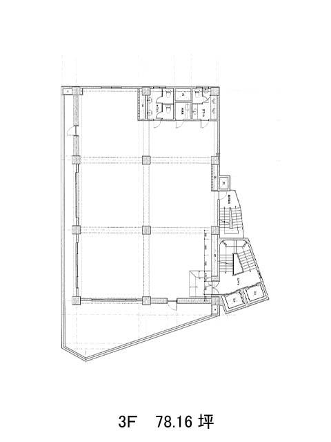
室内は約90坪の整形区画で、柱は数本あるものの、レイアウトの工夫次第でゾーニングにも活かせる構成。水回りも貸室内にまとまっており、執務空間をしっかり確保しやすいのもポイントです。
そして何より、最寄りの茅場町駅から徒歩すぐという立地が魅力的。新大橋通り沿いの角地に位置しており、採光性・視認性ともに申し分ありません。働く人にも訪れる人にも優しい、バランスの取れた一棟です。日本橋茅場町阪神ビルは茅場町駅(4A番出口)の他に水天宮前駅(6番出口)徒歩6分、日本橋駅(D2番出口)徒歩7分で利用も可能です。

