6階は現在募集がありません
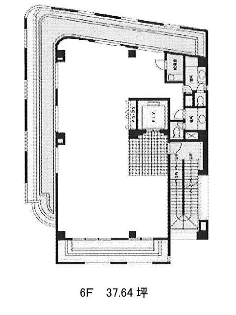
K&Mビル 6階
物件概要
K&Mビルのテナント募集中区画
現在、空室がございません。
アクセス
K&Mビルの物件情報
K&Mビル(中央区日本橋茅場町)は茅場町駅(1番出口)から徒歩2分の賃貸オフィスです。外観は全体的にグレーの大理石と丸みを帯びたガラス張りのデザインがとても重厚感があり美しい印象をうけます。エントランスホールも個性的な雰囲気でとても高級感を感じられる空間に仕上がっております。また周辺には、コンビニや飲食店、金融機関などが複数あるためとても利便性が高いです。ビル内にはOAフロアが備えられており、トイレは男女別となっているため、設備面も充実しております。駐車場はありませんが、近くにパーキングがあるため、社用車を使う場合も便利です。K&Mビルは茅場町駅(1番出口)の他に八丁堀駅(A4番出口)徒歩6分、日本橋駅(D1番出口)徒歩9分で利用も可能です。

