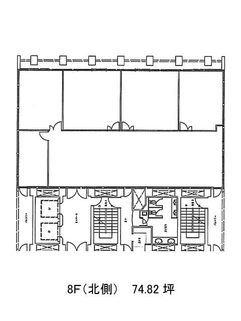
8階 8北は現在募集がありません
茅場町1丁目平和ビル 8階 8北
物件概要
茅場町1丁目平和ビルのテナント募集中区画
現在、空室がございません。
アクセス
茅場町1丁目平和ビルの物件情報
茅場町一丁目平和ビル(中央区日本橋茅場町)は茅場町駅(9番出口)から徒歩2分の賃貸オフィスです。永代通りに面して建てられている9階建てのビルです。外観は、ベージュの吹付けで窓面が大きく、角地にあるため採光性、視認性共高いでしょう。室外には男女別のトイレがあります。間取りは長方形で床はフリーアクセスのため、レイアウトの自由度は高いでしょう。数多くのオフィスビルが建ち並んでいますが、飲食店も多数集まっているので、ランチタイムはビジネスマンで賑わいを見せます。また、銀行や郵便局も徒歩圏内にあるので、利用する際は便利でしょう。茅場町一丁目平和ビルは茅場町駅(9番出口)の他に日本橋駅(D1番出口)徒歩5分、八丁堀駅(A5番出口)徒歩8分で利用も可能です。

