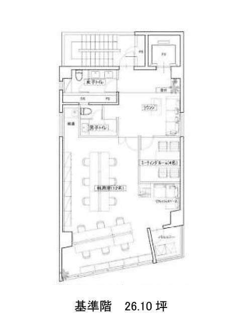
3階は現在募集がありません
REGRARD NINGYOCHO 3階
物件概要
REGRARD NINGYOCHOのテナント募集中区画
現在、空室がございません。
アクセス
REGRARD NINGYOCHOの物件情報
REGRARD NINGYOCHO(中央区日本橋久松町)は馬喰横山駅(A3番出口)から徒歩4分の賃貸オフィスです。REGRARD NINGYOCHOは馬喰横山駅(A3番出口)の他に東日本橋駅(B1番出口)徒歩4分、浜町駅(A1番出口)徒歩5分で利用も可能です。

