3階は現在募集がありません
プライム日本橋久松町ビル 3階
物件概要
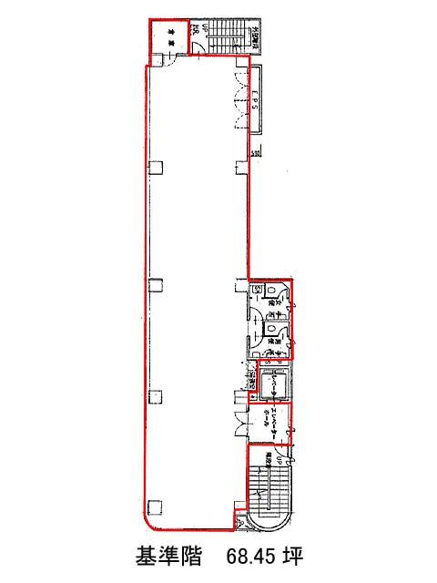
プライム日本橋久松町ビルのテナント募集中区画
現在、空室がございません。
アクセス
プライム日本橋久松町ビルの物件情報
プライム日本橋久松町ビル(中央区日本橋久松町)は馬喰横山駅(A3番出口)から徒歩3分の賃貸オフィスです。外観は全体的にブルーのタイルを使用したとてもスタイリッシュな印象があります。エントランスホールやエレベーターホールは白と木目調を基調としたとても明るい色合いで、清潔感と高級感があります。また周辺には、コンビニや飲食店などが複数あるためとても利便性が高いです。ビル内は個別空調、フリーアクセス完備、トイレは男女別となっており、そしてラウンジスペースもあるため、休憩時などに活用しやすいでしょう。プライム日本橋久松町ビルは馬喰横山駅(A3番出口)の他に東日本橋駅(B1番出口)徒歩3分、浜町駅(A1番出口)徒歩5分で利用も可能です。

