FORECAST人形町PLACE 3階
物件概要
物件番号
652-00178-30物件名
FORECAST人形町PLACE所在地
- 東京都中央区日本橋人形町3-4-14
- アクセスマップ
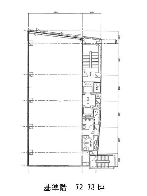
面積
72.73坪賃料(共益費含)
:応相談応相談
入居日
即保証金
応相談礼金
なし更新料
なし償却費
なし竣工
1984年2月構造
SRC規模
地上8階トイレ
男女別空調
個別空調エレベーター
有セキュリティ
有駐車場
無耐震
新耐震基準基準階天井高
2600mm空室延床面積
72.73坪情報更新日
2025/11/12FORECAST人形町PLACEのテナント募集中区画
| 階数 | 面積 | 賃料(共益費含む) | 保証金 | 入居可能日 | 検討リスト | 詳細 |
|---|---|---|---|---|---|---|
| 3 | 72.73坪 | 応相談(応相談) | 応相談 | 即 |
…新着物件
アクセス
FORECAST人形町PLACEの物件情報
FORECAST人形町PLACE(中央区日本橋人形町)は人形町駅(A5番出口)から徒歩1分の賃貸オフィスです。1984年竣工。2003年にはリニューアル工事が実施されており、メンテナンスが行き届いたオフィスビルです。外観は全体的に白のパネル張りで、とてもシンプルな構造になっております。。基準階は約72坪あり、室内はほぼ長方形の形をしているため、比較的レイアウトは組みやすいでしょう。貸室内にはOAフロアが備えられており、トイレは男女別となっております。駐車場はありませんが、近くにパーキングがあるため、社用車を使う場合も便利です周辺には、コンビニや飲食店などが複数あるためとても利便性が高いです。またビルの1Fにもカフェが入っているため、休憩時などに活用しやすいでしょう。FORECAST人形町PLACEは人形町駅(A5番出口)の他に水天宮前駅(8番出口)徒歩5分、小伝馬町駅(3番出口)徒歩9分で利用も可能です。

