4階は現在募集がありません
フジタ人形町ビル 4階
物件概要
フジタ人形町ビルのテナント募集中区画
現在、空室がございません。
アクセス
フジタ人形町ビルの物件情報
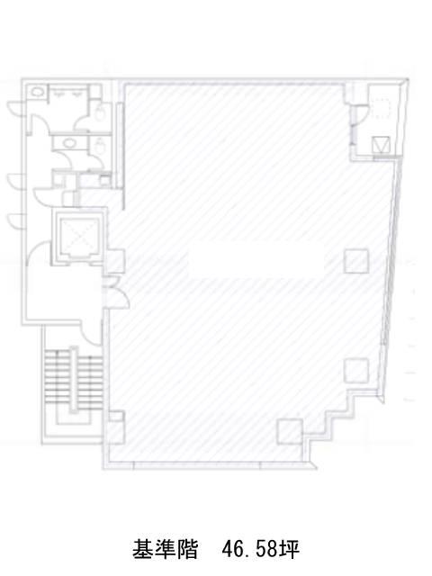
フジタ人形町ビル(中央区日本橋人形町)は水天宮前駅(5番出口)から徒歩2分の賃貸オフィスです。新大橋通りに面した角地に建つ、地上9階・地下1階建てのビルです。壁がガラスとアイアンバーを組み合わせた特徴的なデザインになっていて、洗練された雰囲気の外観です。室内は46坪ほどの長方形の間取りです。柱が邪魔をしない配置になっていて、共用部に給湯室と男女別トイレがすっきりとまとまっているので、レイアウトしやすい室内になっています。主にワンフロア貸しですが、分割して貸し出しているフロアもあります。空き状況とともにお問い合わせください。ビル1階に郵便局があります。フジタ人形町ビルは水天宮前駅(5番出口)の他に人形町駅(A2番出口)徒歩5分、浜町駅(A2番出口)徒歩7分で利用も可能です。

