日本橋DOLL-3のテナント募集中区画
| 階数 | 面積 | 賃料(共益費含む) | 保証金 | 入居可能日 | 検討リスト | 詳細 |
|---|---|---|---|---|---|---|
| 7 | 44.65坪 | 687,610円/月(15,400円/坪) | 392万円 | 即 |
…新着物件
アクセス
日本橋DOLL-3の物件情報
日本橋DOLL-3(中央区日本橋人形町)は人形町駅(A5番出口)から徒歩1分の賃貸オフィスです。水天宮通り沿い、角地に位置する視認性の高い本物件。最寄り駅至近で、日々の通勤や来訪時の案内にも便利な立地です。
外観はグリーンがかったタイル張り。1階エレベーターホール内は御影石が使われ、お花が飾られているなど細部に上品さが感じられます。
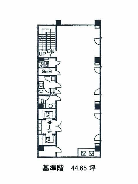
基準階は約44.65坪の1フロア1テナント仕様。ほぼ長方形の無柱空間は、執務スペースや会議室のゾーニングがしやすく、効率的なレイアウトが可能です。水回りは室内に集約されており、占有性が高く使いやすい設計。コンパクトなビルながらエレベーター2基を備えており、朝夕の混雑緩和にも配慮されています。周辺には多彩なジャンルの飲食店や物販店が充実しており、ランチや終業後の利便性も良好なエリアです。日本橋DOLL-3は人形町駅(A5番出口)の他に水天宮前駅(8番出口)徒歩5分、小伝馬町駅(1番出口)徒歩8分で利用も可能です。

