4階は現在募集がありません
1フロア募集区画あり

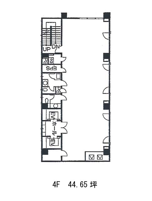
日本橋DOLL-3 4階

前の写真 次の写真

物件概要

物件番号

652-00055-30

物件名

日本橋DOLL-3

所在地

面積

44.65坪

賃料(共益費含)


入居日

募集終了

保証金

礼金

更新料

償却費

竣工

1989年5月

構造

SRC

規模

地上9階/地下1階

トイレ

男女別

空調

個別空調

エレベーター

セキュリティ

駐車場

耐震

新耐震基準

基準階天井高

2500mm

空室延床面積

44.65坪

最寄駅

情報更新日

2025/10/27

日本橋DOLL-3のテナント募集中区画

階数 面積 賃料(共益費含む) 保証金 入居可能日 検討リスト 詳細
7 44.65坪 687,610円/月(15,400円/坪) 392万円
…新着物件

アクセス

日本橋DOLL-3の物件情報

日本橋DOLL-3(中央区日本橋人形町)は人形町駅(A5番出口)から徒歩1分の賃貸オフィスです。
水天宮通り沿い、角地に位置する視認性の高い本物件。最寄り駅至近で、日々の通勤や来訪時の案内にも便利な立地です。
外観はグリーンがかったタイル張り。1階エレベーターホール内は御影石が使われ、お花が飾られているなど細部に上品さが感じられます。
基準階は約44.65坪の1フロア1テナント仕様。ほぼ長方形の無柱空間は、執務スペースや会議室のゾーニングがしやすく、効率的なレイアウトが可能です。水回りは室内に集約されており、占有性が高く使いやすい設計。コンパクトなビルながらエレベーター2基を備えており、朝夕の混雑緩和にも配慮されています。周辺には多彩なジャンルの飲食店や物販店が充実しており、ランチや終業後の利便性も良好なエリアです。
日本橋DOLL-3は人形町駅(A5番出口)の他に水天宮前駅(8番出口)徒歩5分、小伝馬町駅(1番出口)徒歩8分で利用も可能です。

近隣のエリア・駅から探す