8階は現在募集がありません
1フロア募集区画あり

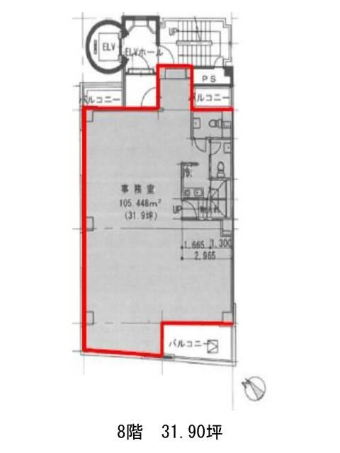
人形町ミハマビル 8階

前の写真 次の写真

物件概要

物件番号

652-00092-81

物件名

人形町ミハマビル

所在地

面積

31.90坪

賃料(共益費含)


入居日

募集終了

保証金

礼金

更新料

償却費

竣工

1986年4月

構造

SRC

規模

地上10階

トイレ

男女別

空調

個別空調

エレベーター

セキュリティ

駐車場

耐震

新耐震基準

基準階天井高

空室延床面積

35.36坪

最寄駅

情報更新日

2025/09/12

人形町ミハマビルのテナント募集中区画

階数 面積 賃料(共益費含む) 保証金 入居可能日 検討リスト 詳細
3 35.36坪 661,232円/月(18,700円/坪) 346万円
…新着物件

アクセス

人形町ミハマビルの物件情報

人形町ミハマビル(中央区日本橋人形町)は人形町駅(A4番出口)から徒歩2分の賃貸オフィスです。
人形町通り沿いの角地に建つ、10階建てのビルです。ビル上部に兜の形のようなデザインが施された、特徴のあるデザインです。基準階は35.36坪の長方形の部屋です。無柱空間になっているので、レイアウトしやすい間取りになっています。給湯室とトイレは室内に設置されています。このビルが建つ一帯は、幕府官・岡本玄治の拝領屋敷跡となっていて、江戸時代には玄治店(げんやだな)という地名で呼ばれていました。その跡地の石碑がビルの前に建っています。近くには「玄冶店 濱田家」という、1912年から続く老舗の料亭があります。
人形町ミハマビルは人形町駅(A4番出口)の他に水天宮前駅(8番出口)徒歩5分、小伝馬町駅(1番出口)徒歩8分で利用も可能です。

近隣のエリア・駅から探す