人形町サンシティビル 3階
物件概要
物件番号
652-00093-30物件名
人形町サンシティビル所在地
- 東京都中央区日本橋人形町1-2-7
- アクセスマップ
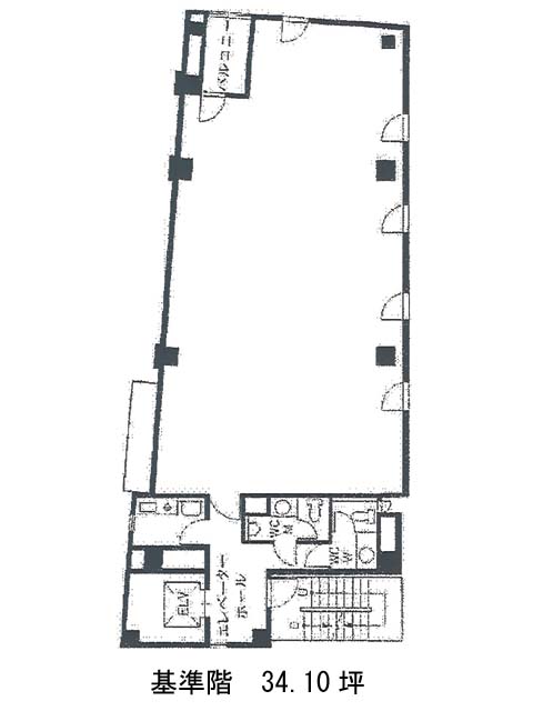
面積
34.10坪賃料(共益費含)
:応相談応相談
入居日
2026年3月上旬保証金
応相談礼金
なし更新料
なし償却費
10%竣工
1990年8月構造
S造規模
地上9階トイレ
男女別空調
個別空調エレベーター
有セキュリティ
有駐車場
無耐震
新耐震基準基準階天井高
2450mm空室延床面積
34.10坪情報更新日
2026/01/16人形町サンシティビルのテナント募集中区画
| 階数 | 面積 | 賃料(共益費含む) | 保証金 | 入居可能日 | 検討リスト | 詳細 |
|---|---|---|---|---|---|---|
| 3 | 34.10坪 | 応相談(応相談) | 応相談 | 2026年3月上旬 |
…新着物件
アクセス
人形町サンシティビルの物件情報
人形町サンシティビル(中央区日本橋人形町)は人形町駅(A6番出口)から徒歩2分の賃貸オフィスです。人形町サンシティビルは人形町駅(A6番出口)の他に水天宮前駅(8番出口)徒歩6分、三越前駅(B6番出口)徒歩8分で利用も可能です。

