5階は現在募集がありません
1フロア募集区画あり

人形町サンシティビル 5階

前の写真 次の写真

物件概要

物件番号

652-00093-50

物件名

人形町サンシティビル

所在地

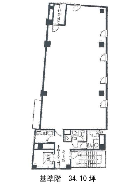
面積

34.10坪

賃料(共益費含)


入居日

募集終了

保証金

礼金

更新料

償却費

竣工

1990年8月

構造

S造

規模

地上9階

トイレ

男女別

空調

個別空調

エレベーター

セキュリティ

駐車場

耐震

新耐震基準

基準階天井高

2450mm

空室延床面積

34.10坪

最寄駅

情報更新日

2026/01/16

人形町サンシティビルのテナント募集中区画

階数 面積 賃料(共益費含む) 保証金 入居可能日 検討リスト 詳細
3 34.10坪 応相談(応相談) 応相談 2026年3月上旬
…新着物件

アクセス

人形町サンシティビルの物件情報

人形町サンシティビル(中央区日本橋人形町)は人形町駅(A6番出口)から徒歩2分の賃貸オフィスです。
人形町サンシティビルは人形町駅(A6番出口)の他に水天宮前駅(8番出口)徒歩6分、三越前駅(B6番出口)徒歩8分で利用も可能です。

近隣のエリア・駅から探す