7階は現在募集がありません
Enetial日本橋大伝馬町ビル 7階
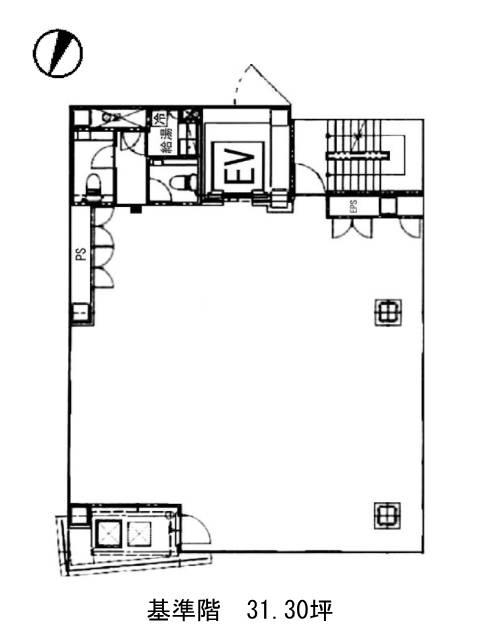
物件概要
Enetial日本橋大伝馬町ビルのテナント募集中区画
現在、空室がございません。
アクセス
Enetial日本橋大伝馬町ビルの物件情報
Enetial日本橋大伝馬町ビル(中央区日本橋大伝馬町)は馬喰横山駅(A2番出口)から徒歩3分の賃貸オフィスです。
Enetial日本橋大伝馬町ビルは馬喰横山駅(A2番出口)の他に馬喰町駅(1番出口)徒歩3分、東日本橋駅(A4番出口)徒歩4分で利用も可能です。


