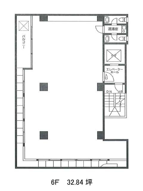
6階は現在募集がありません
HATビル 6階
物件概要
HATビルのテナント募集中区画
現在、空室がございません。
アクセス
HATビルの物件情報
HATビル(中央区日本橋大伝馬町)は小伝馬町駅(1番出口)から徒歩4分の賃貸オフィスです。HATビルは小伝馬町駅(1番出口)の他に馬喰横山駅(A2番出口)徒歩5分、馬喰町駅(1番出口)徒歩6分で利用も可能です。

