5階は現在募集がありません
イマスオフィス馬喰町 5階
物件概要
イマスオフィス馬喰町のテナント募集中区画
現在、空室がございません。
アクセス
イマスオフィス馬喰町の物件情報
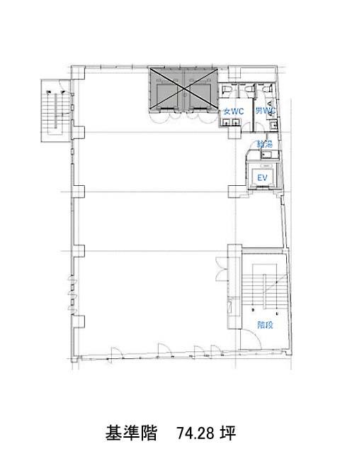
イマスオフィス馬喰町(中央区日本橋馬喰町)は馬喰町駅(1番出口)から徒歩1分の賃貸オフィスです。江戸通り沿いに建つ、9階建てのビルです。ガラスカーテンウォールを使った高級感のある外観です。基準階は74.28坪の長方形の間取りです。柱が邪魔をしないはいち構造なので、レイアウトしやすくなっています。室内に給湯室と男女別トイレが設置されています。エレベーターはダイレクトインになっています。イマスオフィス馬喰町は馬喰町駅(1番出口)の他に馬喰横山駅(A1番出口)徒歩2分、東日本橋駅(A4番出口)徒歩4分で利用も可能です。

