1階は現在募集がありません
ブルックサイド水天宮前 1階
物件概要
ブルックサイド水天宮前 のテナント募集中区画
現在、空室がございません。
アクセス
ブルックサイド水天宮前 の物件情報
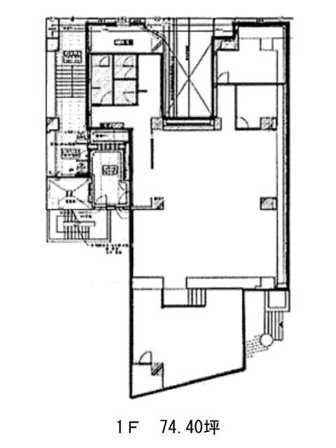
ブルックサイド水天宮前 (中央区日本橋箱崎町)は水天宮前駅(1a番出口)から徒歩3分の賃貸オフィスです。当物件は、マンションの1階区画にあたります。事務所のほか飲食を除く店舗利用も相談可能です(用途詳細は要確認)。
建物は地上8階地下1階建てのSRC造。外観はブラウンのレンが調です。角地に位置し、視認性や開放感に優れています。
周囲は穏やかな環境ですが、飲食店やコンビニエンスストア、郵便局が立地しており利便性を保っています。また、東京シティエアターミナルが徒歩圏内です。ブルックサイド水天宮前 は水天宮前駅(1a番出口)の他に人形町駅(A2番出口)徒歩9分、茅場町駅(4B番出口)徒歩10分で利用も可能です。

