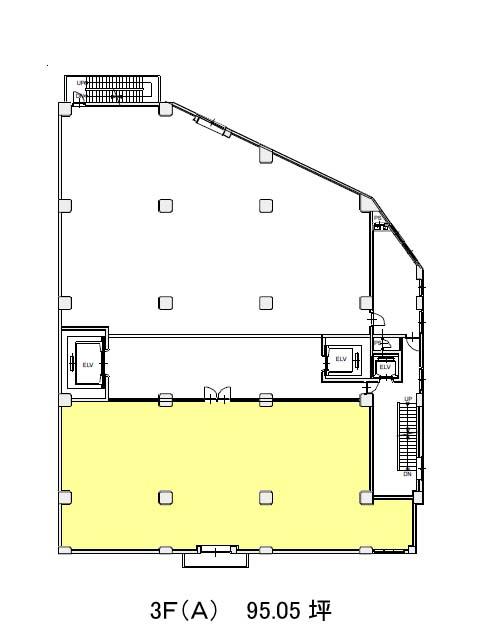
3階 3Aは現在募集がありません
イマス箱崎ビル 3階 3A
物件概要
イマス箱崎ビルのテナント募集中区画
現在、空室がございません。
アクセス
イマス箱崎ビルの物件情報
イマス箱崎ビル(中央区日本橋箱崎町)は水天宮前駅(1a番出口)から徒歩5分の賃貸オフィスです。外観は全体的に白を基調とした色合いで、とてもシンプルなデザインとなっております。エントランスホールやエレベーターホールはとても落ち着いた空間となっております。周辺にはコンビニやスーパー、飲食店などが複数あるため、利便性が高いでしょう。また、首都高速道路のJCTが近くにあり、ビル内にトラックヤードもあるため物流関係の倉庫としても活用できるでしょう。ビル内のトイレは男女別となっており、セキュリティは機械警備を導入しているため安心です。イマス箱崎ビルは水天宮前駅(1a番出口)の他に人形町駅(A2番出口)徒歩12分、浜町駅(出口)徒歩13分で利用も可能です。

