7階は現在募集がありません
日本橋浜町パークビル 7階
物件概要
日本橋浜町パークビルのテナント募集中区画
現在、空室がございません。
アクセス
日本橋浜町パークビルの物件情報
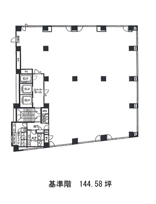
日本橋浜町パークビル(中央区日本橋浜町)は浜町駅(A1番出口)から徒歩2分の賃貸オフィスです。地上11階建ての鉄骨鉄筋コンクリート造の物件です。外観は全体的にグレーを基調とした色合いで、窓が等間隔に並んであるため、統一感もあり視認性の高さを感じられます。基準階は約144坪で個別空調があります。ビル内のトイレは男女別となっており、駐車場もあるため、社用車を使う場合も便利です。周辺にはコンビニや飲食店などがあるため、ランチも楽しめるでしょう。またビルの1Fにもスーパーや飲食店が入っているため、休憩時や仕事終わりに活用しやすいでしょう。日本橋浜町パークビルは浜町駅(A1番出口)の他に東日本橋駅(B1番出口)徒歩5分、馬喰横山駅(A3番出口)徒歩6分で利用も可能です。

