8階は現在募集がありません

日本橋浜町パークビル 8階

前の写真 次の写真

物件概要

物件番号

657-00155-80

物件名

日本橋浜町パークビル

所在地

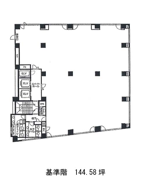
面積

144.58坪

賃料(共益費含)


入居日

募集終了

保証金

礼金

更新料

償却費

竣工

1992年7月

構造

SRC

規模

地上11階

トイレ

男女別

空調

個別空調

エレベーター

セキュリティ

駐車場

耐震

新耐震基準

基準階天井高

2500mm

空室延床面積

最寄駅

情報更新日

2025/04/07

日本橋浜町パークビルのテナント募集中区画

現在、空室がございません。

アクセス

日本橋浜町パークビルの物件情報

日本橋浜町パークビル(中央区日本橋浜町)は浜町駅(A1番出口)から徒歩2分の賃貸オフィスです。
地上11階建ての鉄骨鉄筋コンクリート造の物件です。外観は全体的にグレーを基調とした色合いで、窓が等間隔に並んであるため、統一感もあり視認性の高さを感じられます。基準階は約144坪で個別空調があります。ビル内のトイレは男女別となっており、駐車場もあるため、社用車を使う場合も便利です。周辺にはコンビニや飲食店などがあるため、ランチも楽しめるでしょう。またビルの1Fにもスーパーや飲食店が入っているため、休憩時や仕事終わりに活用しやすいでしょう。
日本橋浜町パークビルは浜町駅(A1番出口)の他に東日本橋駅(B1番出口)徒歩5分、馬喰横山駅(A3番出口)徒歩6分で利用も可能です。

近隣のエリア・駅から探す