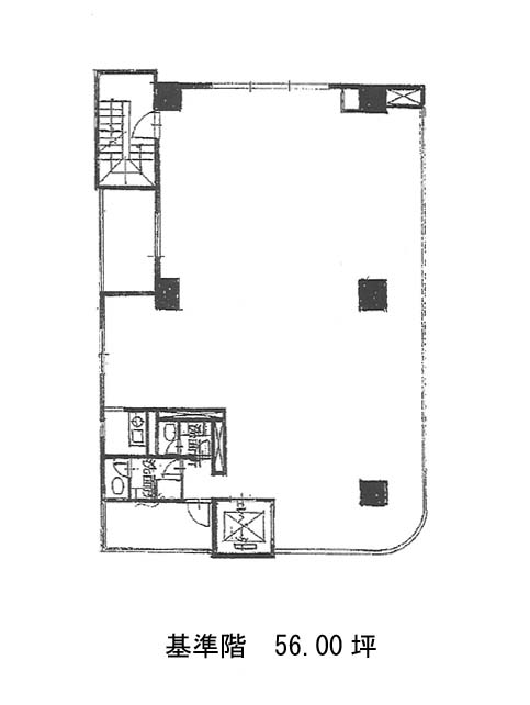
4階は現在募集がありません
VCTビル 4階
物件概要
VCTビルのテナント募集中区画
現在、空室がございません。
アクセス
VCTビルの物件情報
VCTビル(中央区日本橋浜町)は浜町駅(出口)から徒歩3分の賃貸オフィスです。地上10階、地下1階建ての鉄骨鉄筋コンクリート造の物件です。外観は全体的に落ち着いた色合いをしており、窓がライン状に並んでいて、とてもスタイリッシュな印象があります。ビルには駐車場もあるため、社用車を利用する場合には便利でしょう。周辺にはコンビニや飲食店などがあるため、ランチも楽しめるでしょう。また公園も近くにあるため、リラックスしたいときなどに活用するといいでしょう。VCTビルは浜町駅(出口)の他に水天宮前駅(5番出口)徒歩7分、人形町駅(A1番出口)徒歩7分で利用も可能です。

