R.core日本橋人形町ビル 8階
物件概要
物件番号
658-00020-90物件名
R.core日本橋人形町ビル所在地
- 東京都中央区日本橋富沢町7-13
- アクセスマップ
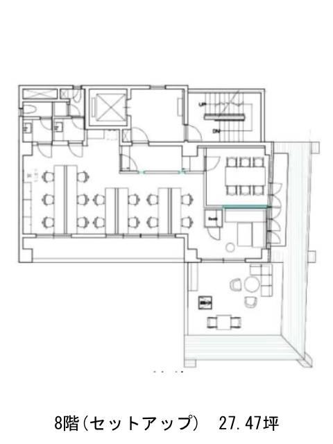
面積
27.47坪賃料(共益費含)
月額725,208円(26,400円/坪)
入居日
2026年1月上旬保証金
応相談礼金
なし更新料
なし償却費
なし竣工
1986年3月構造
SRC規模
地上9階トイレ
男女別空調
個別空調エレベーター
有セキュリティ
有駐車場
無耐震
新耐震基準基準階天井高
2460mm空室延床面積
109.68坪情報更新日
2025/11/18R.core日本橋人形町ビルのテナント募集中区画
| 階数 | 面積 | 賃料(共益費含む) | 保証金 | 入居可能日 | 検討リスト | 詳細 |
|---|---|---|---|---|---|---|
| 6 | 55.95坪 | 1,415,535円/月(25,300円/坪) | 応相談 | 2026年1月上旬 | ||
| 8 | 27.47坪 | 725,208円/月(26,400円/坪) | 応相談 | 2026年1月上旬 | ||
| 9 | 26.26坪 | 693,264円/月(26,400円/坪) | 応相談 | 2026年1月上旬 |
…新着物件
アクセス
R.core日本橋人形町ビルの物件情報
R.core日本橋人形町ビル(中央区日本橋富沢町)は人形町駅(A4番出口)から徒歩5分の賃貸オフィスです。外観はタイル張りのデザインとなっております。角地に立地しているため日当たりも良好でしょう。基準階は約60坪あり、室内はL字型の形をしていますが、柱は壁に沿ってあるため、比較的レイアウトは組みやすいでしょう。ビル内のトイレは男女別となっており、セキュリティは機械警備を導入しております。耐震性も新耐震基準であるため、安心です。また周辺にはコンビニや飲食店、銀行などが複数あるためとても利便性が高いです。R.core日本橋人形町ビルは人形町駅(A4番出口)の他に馬喰横山駅(A3番出口)徒歩5分、東日本橋駅(B2番出口)徒歩6分で利用も可能です。

