3階は現在募集がありません
オーキッドプレイス日本橋富沢町 3階
物件概要
オーキッドプレイス日本橋富沢町のテナント募集中区画
現在、空室がございません。
アクセス
オーキッドプレイス日本橋富沢町の物件情報
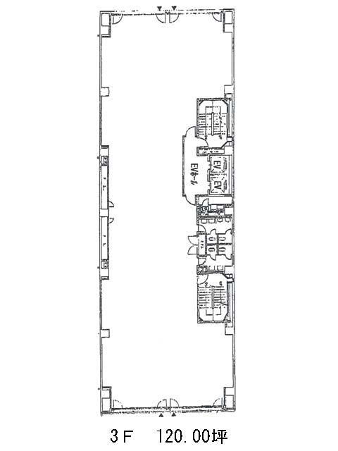
オーキッドプレイス日本橋富沢町(中央区日本橋富沢町)は人形町駅(A4番出口)から徒歩4分の賃貸オフィスです。外観は落ち着いた色のタイル張りで、とてもシンプルなデザインとなっております。エントランスホールもとても清潔感があります。基準階は約120坪あり、室内はほぼ長方形の形をしているため、比較的レイアウトは組みやすいでしょう。ビル内にはOAフロアが備えられており、トイレは男女別となっております。駐車場もあるため、社用車を使う場合も便利です。また周辺にはコンビニや飲食店、郵便局などが複数あるためとても利便性が高いです。オーキッドプレイス日本橋富沢町は人形町駅(A4番出口)の他に馬喰横山駅(A3番出口)徒歩6分、東日本橋駅(B2番出口)徒歩6分で利用も可能です。

