1-5は現在募集がありません
WORK EDITION NINGYOCHO 1-5
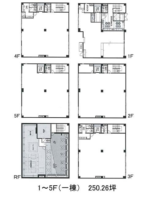
物件概要
WORK EDITION NINGYOCHOのテナント募集中区画
現在、空室がございません。
アクセス
WORK EDITION NINGYOCHOの物件情報
WORK EDITION NINGYOCHO(中央区日本橋富沢町)は人形町駅(A4番出口)から徒歩4分の賃貸オフィスです。WORK EDITION NINGYOCHOは人形町駅(A4番出口)の他に馬喰横山駅(A3番出口)徒歩6分、東日本橋駅(B1番出口)徒歩7分で利用も可能です。

