3階は現在募集がありません
1フロア募集区画あり

サンヨー堂日本橋ビル 3階

前の写真 次の写真

物件概要

物件番号

659-00049-30

物件名

サンヨー堂日本橋ビル

所在地

面積

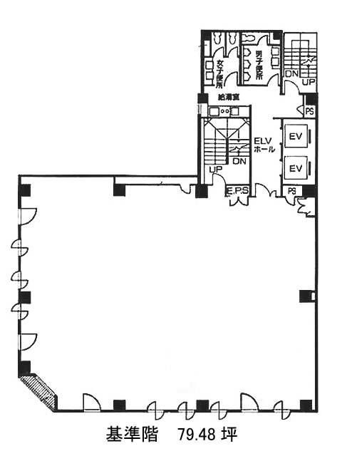
79.48坪

賃料(共益費含)


入居日

募集終了

保証金

礼金

更新料

償却費

竣工

1992年1月

構造

SRC

規模

地上8階/地下1階

トイレ

男女別

空調

個別空調

エレベーター

セキュリティ

駐車場

耐震

新耐震基準

基準階天井高

2400mm

空室延床面積

60.69坪

最寄駅

情報更新日

2026/01/14

サンヨー堂日本橋ビルのテナント募集中区画

階数 面積 賃料(共益費含む) 保証金 入居可能日 検討リスト 詳細
7 60.69坪 1,068,144円/月(17,600円/坪) 873万円
…新着物件

アクセス

サンヨー堂日本橋ビルの物件情報

サンヨー堂日本橋ビル(中央区日本橋堀留町)は小伝馬町駅(3番出口)から徒歩4分の賃貸オフィスです。
御影石をまとった重厚感ある外観が、ビル全体に落ち着いた雰囲気を醸し出しています。きれいに整った窓の配置も相まって、どこかクラシカルで信頼感のある佇まい。来訪者にとっても、印象に残るファサードといえるでしょう。角地に位置しており、各フロアともに通風性・採光性に優れています。
基準階は約80坪の整形空間で、柱が室内に出てこないため、オープンレイアウトから個室設計まで自在なプランニングが可能。床はOAフロア仕様で、配線周りのストレスも軽減されます。
また、トイレや給湯室といった水回りが専有部外にまとめられている点も特長。業務スペースときっちり分けることで、リフレッシュの区切りや動線分離にひと役買ってくれそうです。
サンヨー堂日本橋ビルは小伝馬町駅(3番出口)の他に新日本橋駅(5番出口)徒歩5分、人形町駅(A5番出口)徒歩8分で利用も可能です。

近隣のエリア・駅から探す