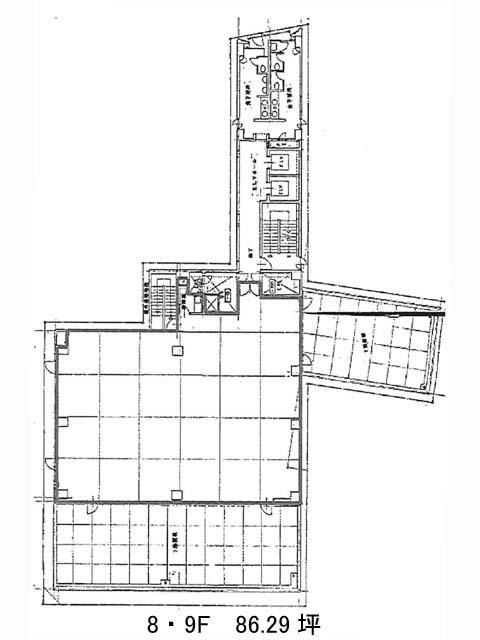
8階は現在募集がありません
JL日本橋ビル 8階
物件概要
JL日本橋ビルのテナント募集中区画
現在、空室がございません。
アクセス
JL日本橋ビルの物件情報
JL日本橋ビル(中央区日本橋堀留町)は人形町駅(A5番出口)から徒歩4分の賃貸オフィスです。外観は全体的に黒系を基調としており、ガラス張りの構成で、とても綺麗でスタイリッシュな印象があります。エントランスホールは広々としており、とても落ち着いた空間となっております。ビル内にはOAフロアが備えられており、トイレは男女別となっております。駐車場もあるため、社用車を使う場合も便利です。セキュリティは機械警備を導入しており、耐震性も新耐震基準であるため、安心できます。また周辺にはコンビニや飲食店、銀行などが複数あるためとても利便性が高いです。JL日本橋ビルは人形町駅(A5番出口)の他に小伝馬町駅(1番出口)徒歩5分、馬喰横山駅(A3番出口)徒歩7分で利用も可能です。

