Nihonbashi OK Bldg 8階
物件概要
物件番号
662-00128-80物件名
Nihonbashi OK Bldg所在地
- 東京都中央区日本橋蛎殻町1-11-10
- アクセスマップ
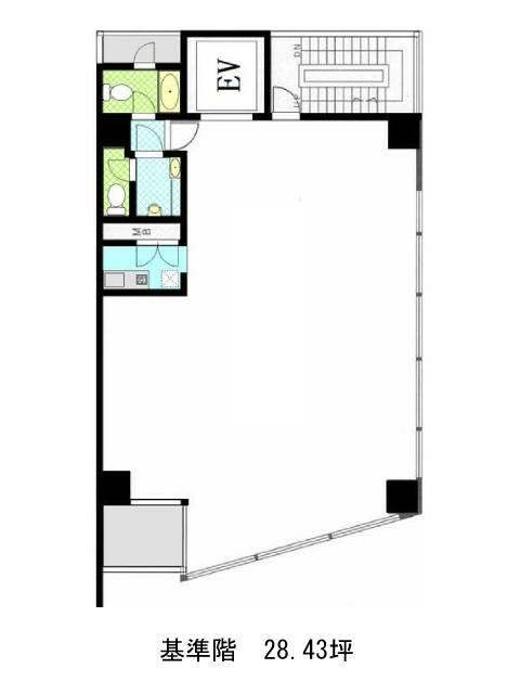
面積
28.43坪賃料(共益費含)
月額500,368円(17,600円/坪)
入居日
即保証金
3,639,040円礼金
なし更新料
新1ケ月償却費
1ケ月竣工
1991年12月構造
SRC規模
地上8階トイレ
男女別空調
個別空調エレベーター
有セキュリティ
有駐車場
無耐震
新耐震基準基準階天井高
空室延床面積
85.29坪情報更新日
2025/11/19Nihonbashi OK Bldgのテナント募集中区画
| 階数 | 面積 | 賃料(共益費含む) | 保証金 | 入居可能日 | 検討リスト | 詳細 |
|---|---|---|---|---|---|---|
| 3 | 28.43坪 | 500,368円/月(17,600円/坪) | 363万円 | 即 | ||
| 7 | 28.43坪 | 500,368円/月(17,600円/坪) | 363万円 | 即 | ||
| 8 | 28.43坪 | 500,368円/月(17,600円/坪) | 363万円 | 即 |
…新着物件
アクセス
Nihonbashi OK Bldgの物件情報
Nihonbashi OK Bldg(中央区日本橋蛎殻町)は人形町駅(A2番出口)から徒歩4分の賃貸オフィスです。Nihonbashi OK Bldgは人形町駅(A2番出口)の他に水天宮前駅(8番出口)徒歩5分、茅場町駅(9番出口)徒歩7分で利用も可能です。

