2階 201は現在募集がありません
東和明石町ビル 2階 201
物件概要
東和明石町ビルのテナント募集中区画
現在、空室がございません。
アクセス
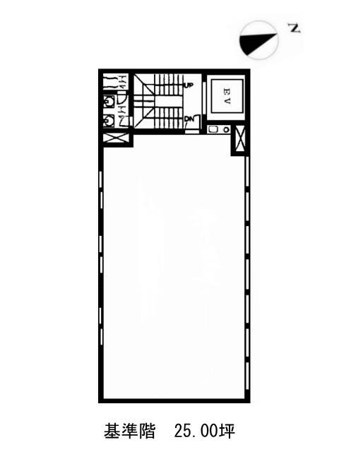
東和明石町ビルの物件情報
東和明石町ビル(中央区明石町)は新富町駅(6番出口)から徒歩2分の賃貸オフィスです。東和明石町ビルは新富町駅(6番出口)の他に築地駅(3番出口)徒歩4分、八丁堀駅(出口)徒歩7分で利用も可能です。

