8階は現在募集がありません

東急戸越ビル 8階

前の写真 次の写真

物件概要

物件番号

748-00001-140

物件名

東急戸越ビル

所在地

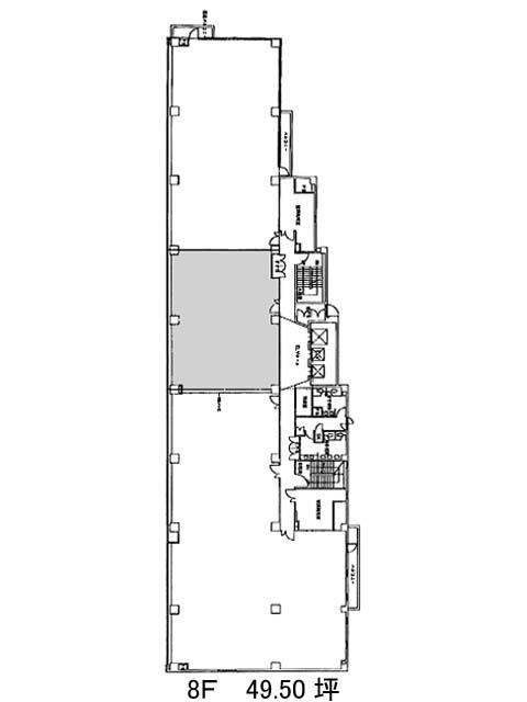
面積

49.50坪

賃料(共益費含)


入居日

募集終了

保証金

礼金

更新料

償却費

竣工

1990年

構造

SRC

規模

地上8階/地下1階

トイレ

男女別

空調

セントラル

エレベーター

セキュリティ

駐車場

耐震

新耐震基準

基準階天井高

2550(1F3000)mm

空室延床面積

最寄駅

情報更新日

2024/12/19

東急戸越ビルのテナント募集中区画

現在、空室がございません。

アクセス

東急戸越ビルの物件情報

東急戸越ビル(品川区戸越)は戸越駅(A3番出口)から徒歩5分の賃貸オフィスです。
1990年竣工、地上8階・地上1階建ての鉄骨鉄筋コンクリート造です。基準階面積は約260坪の大型オフィスで、貸室内はOAフロア、空調はフロア毎空調方式、一部フロア個別空調方式、室外男女別トイレ、エレベーターは3基設置されており、セキュリティは常駐管理で安心して業務に取り組めるでしょう。窓面も多く採光良好の明るいオフィスです。グレー調のタイル張りの外観が重厚感を感じさせます。第二京浜沿いで視認性抜群、近くに戸越台公園があり休憩時にも活用できそうです。
東急戸越ビルは戸越駅(A3番出口)の他に戸越銀座駅(出口1)徒歩6分、大崎広小路駅(出口)徒歩12分で利用も可能です。

近隣のエリア・駅から探す