1階は現在募集がありません
1フロア募集区画あり

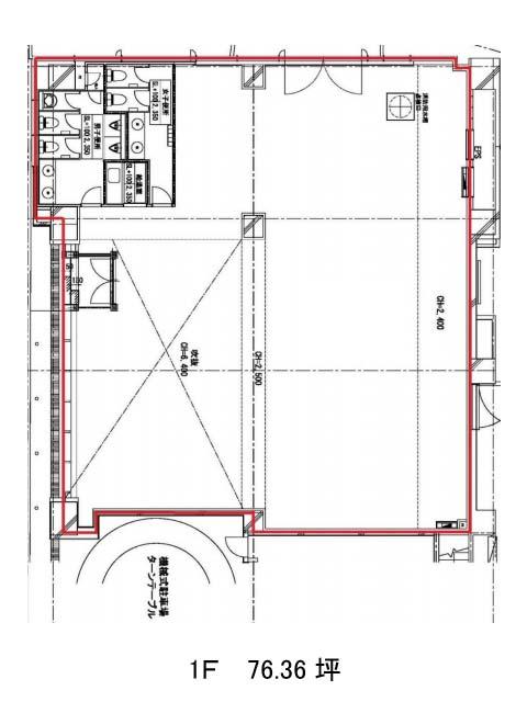
TK五反田ビル 1階

前の写真 次の写真

物件概要

物件番号

754-00114-92

物件名

TK五反田ビル

所在地

面積

76.36坪

賃料(共益費含)


入居日

募集終了

保証金

礼金

更新料

償却費

竣工

1989年4月

構造

規模

地上9階/地下1階

トイレ

男女別

空調

個別空調

エレベーター

セキュリティ

駐車場

耐震

新耐震基準

基準階天井高

空室延床面積

139.54坪

最寄駅

情報更新日

2025/11/12

TK五反田ビルのテナント募集中区画

階数 面積 賃料(共益費含む) 保証金 入居可能日 検討リスト 詳細
8 139.54坪 応相談(応相談) 応相談
…新着物件

アクセス

TK五反田ビルの物件情報

TK五反田ビル(品川区西五反田)は大崎広小路駅(出口)から徒歩3分の賃貸オフィスです。
1989年竣工、地上9階地下1階建のビルです。角地に建っており視認性が高いでしょう。二面採光で室内は十分な明るさが取り入れられるでしょう。基準階面積は139.54坪。支柱が中央に無い為、配置がしやすいでしょう。EV2基・駐車場・非常階段2箇所・湯沸室・個別空調・OAフロア・貸室外の男女別トイレといった設備仕様をしています。1階は1部が吹き抜けになっており、該当部分は6400㎜の天井高になっています。
TK五反田ビルは大崎広小路駅(出口)の他に五反田駅(出口)徒歩6分、大崎駅(西口)徒歩11分で利用も可能です。

近隣のエリア・駅から探す