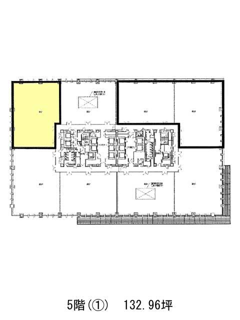
5階 1は現在募集がありません
五反田JPビルディング 5階 1
物件概要
五反田JPビルディングのテナント募集中区画
現在、空室がございません。
アクセス
五反田JPビルディングの物件情報
五反田JPビルディング(品川区西五反田)は大崎広小路駅(出口)から徒歩2分の賃貸オフィスです。2023年12月竣工、地上20階地下3階建S造のビルです。基壇部・上層部共にミラーガラス貼りでシャープなデザインをしています。基準階面積は960.45坪。貸室も200坪を超える大型のものがそろい、大型のオフィスをお探しの企業様によいでしょう。EV・駐車場・空調・貸室外の男女別トイレといった設備仕様をしています。1階はフードホール・2階はシェアオフィス・3~12階がオフィス・14~20階がホテルとなっています。五反田JPビルディングは大崎広小路駅(出口)の他に五反田駅(出口)徒歩6分、大崎駅(西口)徒歩9分で利用も可能です。

