飯島ビル本館 B1-4
物件概要
物件番号
761-00253-1物件名
飯島ビル本館所在地
- 東京都品川区東五反田5-28-8
- アクセスマップ
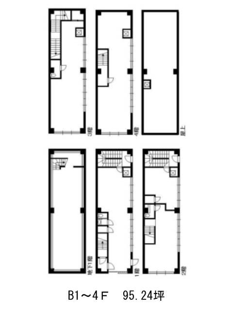
面積
95.24坪賃料(共益費含)
月額1,870,000円(19,635円/坪)
入居日
即保証金
10,200,204円礼金
2ケ月更新料
新1ケ月償却費
2ケ月竣工
1988年11月構造
RC規模
地上4階/地下1階トイレ
男女別空調
個別空調エレベーター
無セキュリティ
駐車場
無耐震
新耐震基準基準階天井高
空室延床面積
95.24坪情報更新日
2025/08/25飯島ビル本館のテナント募集中区画
| 階数 | 面積 | 賃料(共益費含む) | 保証金 | 入居可能日 | 検討リスト | 詳細 |
|---|---|---|---|---|---|---|
| B1-4 | 95.24坪 | 1,870,000円/月(19,635円/坪) | 1,020万円 | 即 |
…新着物件
アクセス
飯島ビル本館の物件情報
飯島ビル本館(品川区東五反田)は五反田駅(A4番出口)から徒歩2分の賃貸オフィスです。飯島ビル本館は五反田駅(A4番出口)の他に大崎広小路駅(出口)徒歩9分、高輪台駅(A2番出口)徒歩11分で利用も可能です。

