須賀ビル 7階
物件概要
物件番号
761-00066-93物件名
須賀ビル所在地
- 東京都品川区東五反田1-14-11
- アクセスマップ
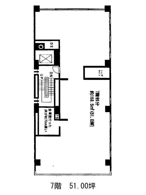
面積
51.00坪賃料(共益費含)
月額1,234,200円(24,200円/坪)
入居日
相談保証金
6,120,000円礼金
1ケ月更新料
新1ケ月償却費
2ケ月竣工
1973年1月構造
SRC規模
地上8階/地下1階トイレ
男女別空調
個別空調エレベーター
有セキュリティ
有駐車場
無耐震
旧耐震基準基準階天井高
2500mm空室延床面積
51.00坪情報更新日
2025/10/23須賀ビルのテナント募集中区画
| 階数 | 面積 | 賃料(共益費含む) | 保証金 | 入居可能日 | 検討リスト | 詳細 |
|---|---|---|---|---|---|---|
| 7 | 51.00坪 | 1,234,200円/月(24,200円/坪) | 612万円 | 相談 |
…新着物件
アクセス
須賀ビルの物件情報
須賀ビル(品川区東五反田)は五反田駅(A5番出口)から徒歩2分の賃貸オフィスです。須賀ビルは五反田駅(A5番出口)の他に大崎広小路駅(出口)徒歩7分、大崎駅(東口)徒歩12分で利用も可能です。

