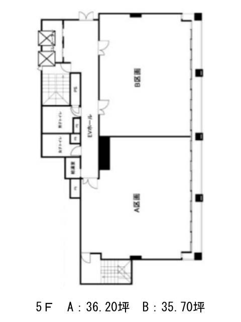
5階 5Bは現在募集がありません
マツモトスバルビル 5階 5B
物件概要
マツモトスバルビルのテナント募集中区画
現在、空室がございません。
アクセス
マツモトスバルビルの物件情報
マツモトスバルビル(品川区平塚)は戸越銀座駅(出口2)から徒歩5分の賃貸オフィスです。マツモトスバルビルは戸越銀座駅(出口2)の他に戸越駅(A3番出口)徒歩6分、大崎広小路駅(出口)徒歩13分で利用も可能です。

