2階は現在募集がありません
両国TSビル 2階
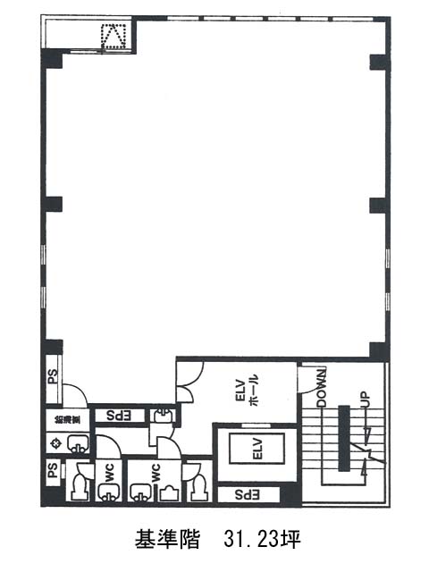
物件概要
両国TSビルのテナント募集中区画
現在、空室がございません。
アクセス
両国TSビルの物件情報
両国TSビル(墨田区千歳)は森下駅(A5番出口)から徒歩6分の賃貸オフィスです。両国TSビルは森下駅(A5番出口)の他に両国駅(A5番出口)徒歩6分、清澄白河駅(A1番出口)徒歩13分で利用も可能です。

