スピリットビル 8階
物件概要
物件番号
122-00035-82物件名
スピリットビル所在地
- 東京都港区虎ノ門3-19-13
- アクセスマップ
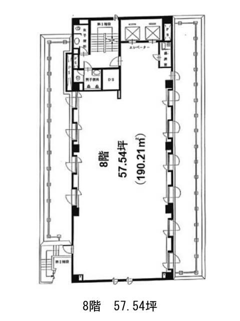
面積
57.54坪賃料(共益費含)
月額1,265,880円(22,000円/坪)
入居日
即保証金
5,754,000円礼金
なし更新料
なし償却費
1ケ月竣工
1982年5月構造
SRC規模
地上8階/地下1階トイレ
男女別空調
セントラル+個別空調エレベーター
有セキュリティ
有駐車場
有耐震
新耐震基準基準階天井高
2335-2450mm空室延床面積
57.54坪情報更新日
2025/09/05スピリットビルのテナント募集中区画
| 階数 | 面積 | 賃料(共益費含む) | 保証金 | 入居可能日 | 検討リスト | 詳細 |
|---|---|---|---|---|---|---|
| 8 | 57.54坪 | 1,265,880円/月(22,000円/坪) | 575万円 | 即 |
…新着物件
アクセス
スピリットビルの物件情報
スピリットビル(港区虎ノ門)は神谷町駅(3番出口)から徒歩3分の賃貸オフィスです。落ち着いた街並みに馴染むブラウンレンガ調の外観が印象的な当ビルは、重厚感と品のある佇まいが魅力。エントランスやホールにはホテルライクな設えが施され、来訪者にも好印象を与えます。
基準階は約89坪で、最大100坪強まで対応可能。過去には中規模分割の実績もあり、フレキシブルなレイアウトに柔軟に応えます。
EVは2基設置されており、朝夕の混雑も軽減。OAフロアや機械警備も完備されており、安心感のある執務環境が整っています。駅至近ながらビル周辺は落ち着いた雰囲気で、徒歩圏内にコンビニや飲食店が点在している点も、日々の利便性を支える嬉しいポイントです。スピリットビルは神谷町駅(3番出口)の他に虎ノ門ヒルズ駅(A1番出口)徒歩7分、御成門駅(A5番出口)徒歩8分で利用も可能です。

