THE PORTAL MITAのテナント募集中区画
| 階数 | 面積 | 賃料(共益費含む) | 保証金 | 入居可能日 | 検討リスト | 詳細 |
|---|---|---|---|---|---|---|
| 5 | 104.69坪 | 3,454,770円/月(33,000円/坪) | 2,198万円 | 2026年3月上旬 |
…新着物件
アクセス
THE PORTAL MITAの物件情報
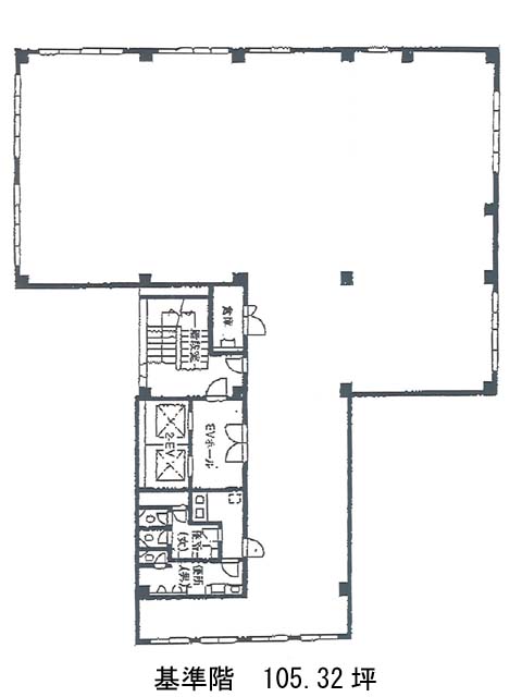
THE PORTAL MITA(港区三田)は三田駅(A3番出口)から徒歩5分の賃貸オフィスです。1990年竣工、地上7階建て新耐震基準適合のビルです。白い壁面に等間隔に窓が並び、堅牢な印象の外観。EV2基・駐車場・個別空調・OAフロア・貸室外の男女別トイレといった設備仕様をしています。ラウンジや水まわりは、木目調の壁紙を取り入れ明るく清潔感のある内装をしています。桜田通りから1本入った地蔵通り沿いに建ち、落ち着いた雰囲気の街並みをしています。周辺にベーカリーやカフェ・ラーメン屋等の飲食店がありランチにご利用頂けるでしょう。THE PORTAL MITAは三田駅(A3番出口)の他に田町駅(三田口)徒歩7分、泉岳寺駅(A4番出口)徒歩13分で利用も可能です。

