THE PORTAL MITA 5階
物件概要
物件番号
125-00191-32物件名
THE PORTAL MITA所在地
- 東京都港区三田3-2-8
- アクセスマップ
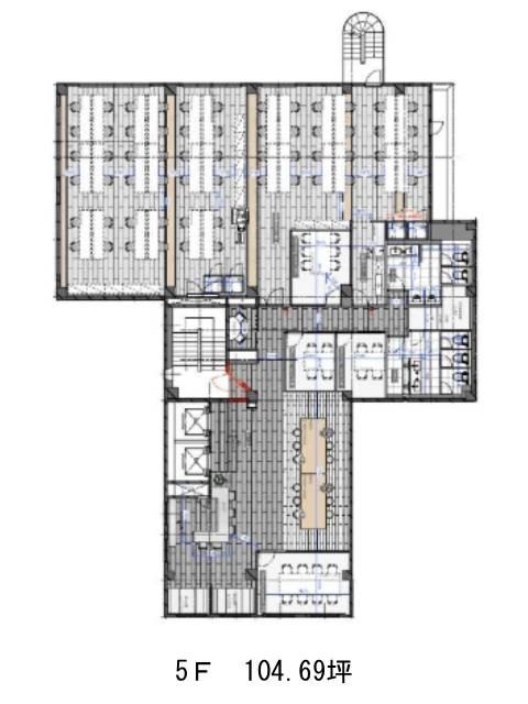
面積
104.69坪賃料(共益費含)
月額3,454,770円(33,000円/坪)
入居日
2026年3月上旬保証金
21,984,900円礼金
なし更新料
なし償却費
なし竣工
1990年8月構造
規模
地上7階トイレ
男女別空調
個別空調エレベーター
有セキュリティ
駐車場
有耐震
新耐震基準基準階天井高
空室延床面積
104.69坪情報更新日
2025/11/14THE PORTAL MITAのテナント募集中区画
| 階数 | 面積 | 賃料(共益費含む) | 保証金 | 入居可能日 | 検討リスト | 詳細 |
|---|---|---|---|---|---|---|
| 5 | 104.69坪 | 3,454,770円/月(33,000円/坪) | 2,198万円 | 2026年3月上旬 |
…新着物件
アクセス
THE PORTAL MITAの物件情報
THE PORTAL MITA(港区三田)は三田駅(A3番出口)から徒歩5分の賃貸オフィスです。1990年竣工、地上7階建て新耐震基準適合のビルです。白い壁面に等間隔に窓が並び、堅牢な印象の外観。EV2基・駐車場・個別空調・OAフロア・貸室外の男女別トイレといった設備仕様をしています。ラウンジや水まわりは、木目調の壁紙を取り入れ明るく清潔感のある内装をしています。桜田通りから1本入った地蔵通り沿いに建ち、落ち着いた雰囲気の街並みをしています。周辺にベーカリーやカフェ・ラーメン屋等の飲食店がありランチにご利用頂けるでしょう。THE PORTAL MITAは三田駅(A3番出口)の他に田町駅(三田口)徒歩7分、泉岳寺駅(A4番出口)徒歩13分で利用も可能です。

