港協会館 6階
物件概要
物件番号
127-00215-1物件名
港協会館所在地
- 東京都港区芝浦3-5-38
- アクセスマップ
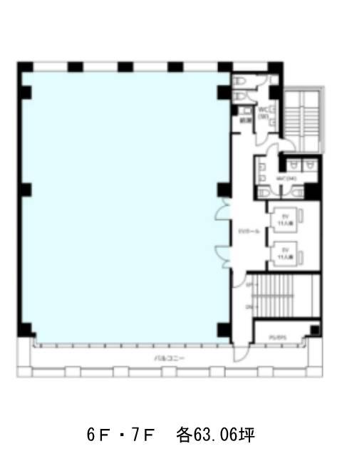
面積
63.06坪賃料(共益費含)
月額1,942,248円(30,800円/坪)
入居日
即保証金
15,765,000円礼金
なし更新料
なし償却費
なし竣工
2023年11月構造
S造規模
地上7階トイレ
男女別空調
個別空調エレベーター
有セキュリティ
有駐車場
有耐震
新耐震基準基準階天井高
2700mm空室延床面積
126.12坪情報更新日
2025/09/09港協会館のテナント募集中区画
| 階数 | 面積 | 賃料(共益費含む) | 保証金 | 入居可能日 | 検討リスト | 詳細 |
|---|---|---|---|---|---|---|
| 6 | 63.06坪 | 1,942,248円/月(30,800円/坪) | 1,576万円 | 即 | ||
| 7 | 63.06坪 | 1,942,248円/月(30,800円/坪) | 1,576万円 | 即 |
…新着物件
アクセス
港協会館の物件情報
港協会館(港区芝浦)は田町駅(芝浦口)から徒歩3分の賃貸オフィスです。スクエアなガラス窓が整然と並ぶ外観は、モダンかつ洗練された印象を与え、来訪者にも好印象です。
1フロア約63坪の整形空間はレイアウト効率が高く、バックオフィスから来客対応まで幅広く対応可能。各階に男女別トイレや給湯室を備え、快適な執務環境が整っています。OAフロア・個別空調・機械警備といった基本スペックも充実。さらに駐車場の用意もあるため、車利用の多い企業にも安心です。周辺にはコンビニやカフェも点在し、ランチや急な買い物にも困りません。働く人の目線に寄り添った、実用性とデザイン性を兼ね備えたオフィス空間です。港協会館は田町駅(芝浦口)の他に三田駅(A4番出口)徒歩6分、芝公園駅(A1番出口)徒歩15分で利用も可能です。

