3-4は現在募集がありません
宮島レジデンス 3-4
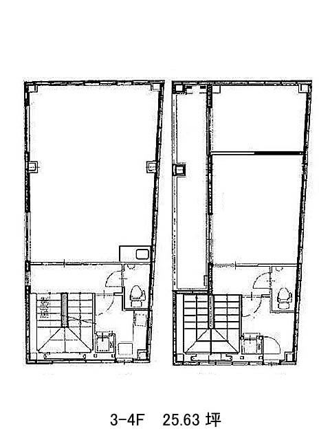
物件概要
宮島レジデンスのテナント募集中区画
現在、空室がございません。
アクセス
宮島レジデンスの物件情報
宮島レジデンス(港区赤坂)は赤坂駅(2番出口)から徒歩3分の賃貸オフィスです。1980年竣工地上4階建のビルです。白いタイル張りで清潔感のある外観をしています。1階にコインランドリーが入り、ご案内の目印としてわかりやすいでしょう。フロア毎に和室があったり、大型のウォークインクローゼット・ミニキッチン・浴室があったりと住宅タイプのバリエーション豊かな造作になっております。周辺は赤坂みすじ通り・エスプラナード赤坂通りに近く、飲食店が充実しているエリアとなります。昼夜問わず多様なジャンルのお食事をお楽しみ頂けるでしょう。宮島レジデンスは赤坂駅(2番出口)の他に溜池山王駅(10番出口)徒歩6分、赤坂見附駅(出口1)徒歩7分で利用も可能です。

