4階は現在募集がありません
赤坂セントラル 4階
物件概要
赤坂セントラルのテナント募集中区画
現在、空室がございません。
アクセス
赤坂セントラルの物件情報
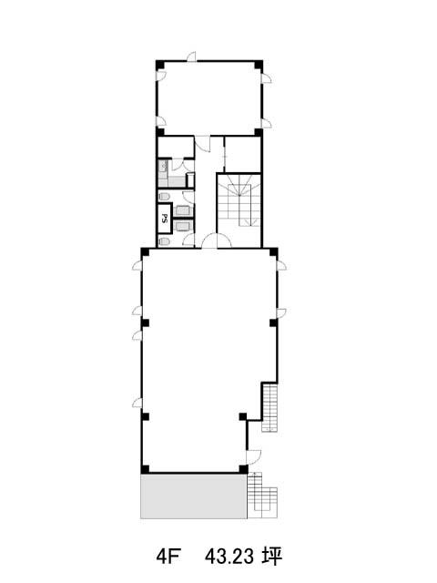
赤坂セントラル(港区赤坂)は赤坂見附駅(10番出口)から徒歩2分の賃貸オフィスです。1989年竣工。外観はガラス張りになっており、オシャレなデザインです。エントランスホールやエレベーターホールは高級感を感じられます。周辺にはコンビニや飲食店などが複数あるため、ランチも楽しめるでしょう。またビルの1階にも飲食店が入っているため、休憩時などに活用しやすいでしょう。ビル内のトイレは男女別となっており、耐震性も新耐震基準であるため、安心です。基準階は約43坪あり、室内はほぼ長方形の形をしているため、比較的レイアウトは組みやすいでしょう。赤坂セントラルは赤坂見附駅(10番出口)の他に永田町駅(8番出口)徒歩4分、赤坂駅(1番出口)徒歩6分で利用も可能です。

