4階は現在募集がありません
赤坂セントラルビル 4階
物件概要
赤坂セントラルビルのテナント募集中区画
現在、空室がございません。
アクセス
赤坂セントラルビルの物件情報
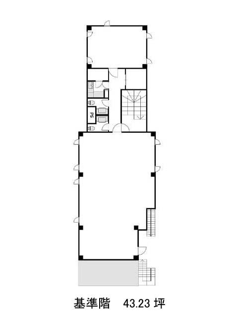
赤坂セントラルビル(港区赤坂)は赤坂駅(2番出口)から徒歩2分の賃貸オフィスです。外観は全体的にグレーを基調とした色合いで、とてもシンプルなデザインとなっております。エントランスやエレベーターホールは清潔感があり、とても落ち着いた空間となっております。また周辺にはコンビニや飲食店、郵便局、銀行などがあるためとても利便性が高いです。ビル内のトイレは男女別となっております。セキュリティは機械警備を導入しており、耐震性も新耐震基準であるため、安心です。基準階は約43坪あり、室内はほぼ長方形の形をしているため、比較的レイアウトは組みやすいでしょう。赤坂セントラルビルは赤坂駅(2番出口)の他に赤坂見附駅(出口1)徒歩5分、溜池山王駅(7番出口)徒歩6分で利用も可能です。

