赤坂福住ビル 2階
物件概要
物件番号
133-00254-30物件名
赤坂福住ビル所在地
- 東京都港区赤坂2-17-58
- アクセスマップ
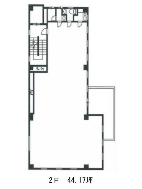
面積
44.17坪賃料(共益費含)
月額825,000円(18,678円/坪)
入居日
即保証金
4,500,040円礼金
1ケ月更新料
なし償却費
2ケ月竣工
1974年6月構造
RC規模
地上5階/地下2階トイレ
男女別空調
個別空調エレベーター
有セキュリティ
駐車場
無耐震
旧耐震基準基準階天井高
空室延床面積
44.17坪情報更新日
2025/12/02赤坂福住ビルのテナント募集中区画
| 階数 | 面積 | 賃料(共益費含む) | 保証金 | 入居可能日 | 検討リスト | 詳細 |
|---|---|---|---|---|---|---|
| 2 | 44.17坪 | 825,000円/月(18,678円/坪) | 450万円 | 即 |
…新着物件
アクセス
赤坂福住ビルの物件情報
赤坂福住ビル(港区赤坂)は赤坂駅(5a番出口)から徒歩3分の賃貸オフィスです。1974年竣工の地上5階地下2階建ビルです。坂の途中の角地に建ち、視認性が高いでしょう。外観は茶色のレンガ貼りと縦長のガラス窓で、レトロな洋館のような美観があります。共用部は白を基調とし、すっきりとした清潔感があります。EV・男女別トイレ・個別空調・給湯室といった設備仕様です。店舗が入居していますが、オフィスと動線がしっかりと区別されております。周辺は、バー・寿司・天ぷら等赤坂ならではの飲食店が多く、接待・会食等便利にご利用頂けるでしょう。赤坂福住ビルは赤坂駅(5a番出口)の他に溜池山王駅(11番出口)徒歩7分、六本木一丁目駅(3番出口)徒歩9分で利用も可能です。

