5階は現在募集がありません
キーストーン赤坂ビル 5階
物件概要
キーストーン赤坂ビルのテナント募集中区画
現在、空室がございません。
アクセス
キーストーン赤坂ビルの物件情報
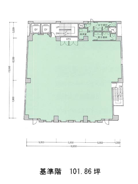
キーストーン赤坂ビル(港区赤坂)は赤坂見附駅(A番出口)から徒歩3分の賃貸オフィスです。外観は全体的にグレーを基調とした色合いで、とても重厚感のある造りになっております。エントランスやエレベーターホールはとても清潔感があり、高級感も感じられます。また周辺にはコンビニや飲食店、郵便局、銀行などがあるためとても利便性が高いです。ビル内にはOAフロアが備えられており、トイレは男女別となっております。駐車場も完備してあるため、社用車を使用する場合は便利でしょう。セキュリティは機械警備を導入しており、耐震性も新耐震基準であるため、安心です。キーストーン赤坂ビルは赤坂見附駅(A番出口)の他に永田町駅(7番出口)徒歩5分、赤坂駅(1番出口)徒歩6分で利用も可能です。

