6階は現在募集がありません

キーストーン赤坂ビル 6階

前の写真 次の写真

物件概要

物件番号

133-00422-70

物件名

キーストーン赤坂ビル

所在地

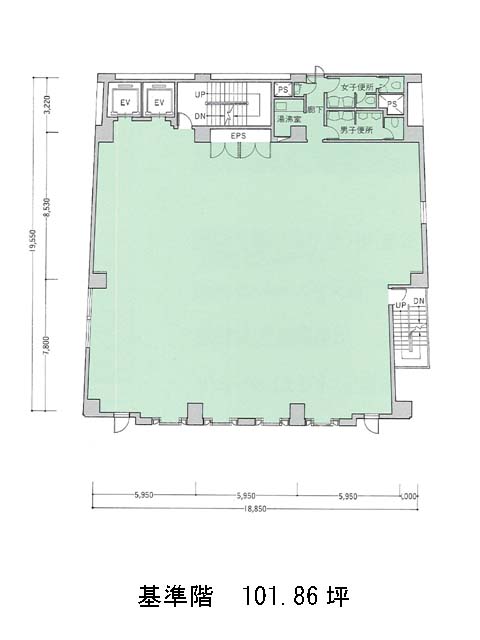
面積

101.86坪

賃料(共益費含)


入居日

募集終了

保証金

礼金

更新料

償却費

竣工

1990年1月

構造

SRC

規模

地上7階/地下1階

トイレ

男女別

空調

個別空調

エレベーター

セキュリティ

駐車場

耐震

新耐震基準

基準階天井高

2520mm

空室延床面積

最寄駅

情報更新日

2023/12/27

キーストーン赤坂ビルのテナント募集中区画

現在、空室がございません。

アクセス

キーストーン赤坂ビルの物件情報

キーストーン赤坂ビル(港区赤坂)は赤坂見附駅(A番出口)から徒歩3分の賃貸オフィスです。
外観は全体的にグレーを基調とした色合いで、とても重厚感のある造りになっております。エントランスやエレベーターホールはとても清潔感があり、高級感も感じられます。また周辺にはコンビニや飲食店、郵便局、銀行などがあるためとても利便性が高いです。ビル内にはOAフロアが備えられており、トイレは男女別となっております。駐車場も完備してあるため、社用車を使用する場合は便利でしょう。セキュリティは機械警備を導入しており、耐震性も新耐震基準であるため、安心です。
キーストーン赤坂ビルは赤坂見附駅(A番出口)の他に永田町駅(7番出口)徒歩5分、赤坂駅(1番出口)徒歩6分で利用も可能です。

近隣のエリア・駅から探す