7階は現在募集がありません
日総第24ビル 7階
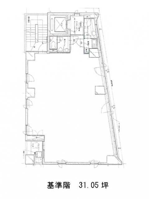
物件概要
日総第24ビルのテナント募集中区画
現在、空室がございません。
アクセス
日総第24ビルの物件情報
日総第24ビル(港区赤坂)は赤坂見附駅(出口)から徒歩2分の賃貸オフィスです。日総第24ビルは赤坂見附駅(出口)の他に永田町駅(8番出口)徒歩3分、赤坂駅(1番出口)徒歩7分で利用も可能です。

