赤坂ウィングビル 2階
物件概要
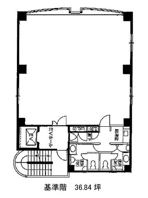
赤坂ウィングビルのテナント募集中区画
| 階数 | 面積 | 賃料(共益費含む) | 保証金 | 入居可能日 | 検討リスト | 詳細 |
|---|---|---|---|---|---|---|
| 2 | 36.84坪 | 応相談(応相談) | 応相談 | 即 |
…新着物件
アクセス
赤坂ウィングビルの物件情報
赤坂ウィングビル(港区赤坂)は赤坂駅(5b番出口)から徒歩6分の賃貸オフィスです。赤坂ウィングビルは赤坂駅(5b番出口)の他に溜池山王駅(12番出口)徒歩7分、六本木一丁目駅(3番出口)徒歩7分で利用も可能です。

