3階は現在募集がありません
1フロア募集区画あり

赤坂ウィングビル 3階

前の写真 次の写真

物件概要

物件番号

133-00506-30

物件名

赤坂ウィングビル

所在地

面積

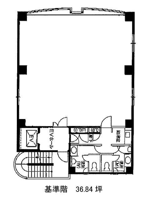
36.84坪

賃料(共益費含)


入居日

募集終了

保証金

礼金

更新料

償却費

竣工

1994年2月

構造

RC

規模

地上5階

トイレ

男女別

空調

個別空調

エレベーター

セキュリティ

駐車場

耐震

新耐震基準

基準階天井高

2500mm

空室延床面積

36.84坪

最寄駅

情報更新日

2025/11/17

赤坂ウィングビルのテナント募集中区画

階数 面積 賃料(共益費含む) 保証金 入居可能日 検討リスト 詳細
2 36.84坪 応相談(応相談) 応相談
…新着物件

アクセス

赤坂ウィングビルの物件情報

赤坂ウィングビル(港区赤坂)は赤坂駅(5b番出口)から徒歩6分の賃貸オフィスです。
赤坂ウィングビルは赤坂駅(5b番出口)の他に溜池山王駅(12番出口)徒歩7分、六本木一丁目駅(3番出口)徒歩7分で利用も可能です。

近隣のエリア・駅から探す