2階は現在募集がありません
専修赤坂ビル 2階
物件概要
専修赤坂ビルのテナント募集中区画
現在、空室がございません。
アクセス
専修赤坂ビルの物件情報
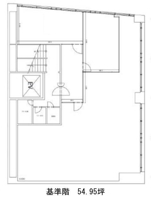
専修赤坂ビル(港区赤坂)は赤坂見附駅(11番出口)から徒歩3分の賃貸オフィスです。1973年竣工、地上8階地下1階建のビルです。外堀通り沿いの角地に建ち、視認性が高いでしょう。基壇部はブラウンで温かみがある色調、高層部は白で軽やかな色味の外壁をしています。室内は支柱が中央に無いすっきりとした形状をしています。OAフロアで、配線の自由度が高まるでしょう。EV・男女別トイレ・個別空調といった設備仕様で、機械警備が導入されています。周辺はコンビニや飲食店が充実したエリアになっており、ランチにご利用頂けるでしょう。専修赤坂ビルは赤坂見附駅(11番出口)の他に赤坂駅(2番出口)徒歩4分、溜池山王駅(5番出口)徒歩5分で利用も可能です。

