4階は現在募集がありません
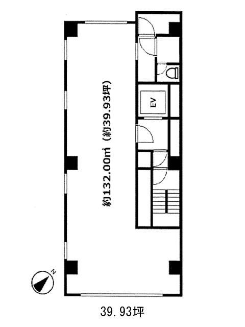
荒島ビル 4階
物件概要
荒島ビルのテナント募集中区画
現在、空室がございません。
アクセス
荒島ビルの物件情報
荒島ビル(港区赤坂)は赤坂駅(4番出口)から徒歩1分の賃貸オフィスです。荒島ビルは赤坂駅(4番出口)の他に赤坂見附駅(出口1)徒歩8分、溜池山王駅(7番出口)徒歩8分で利用も可能です。

